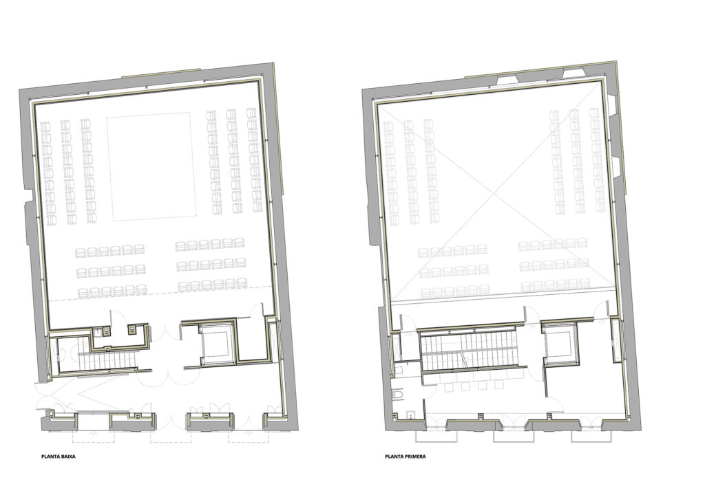
L’edifici de Can Cors, situat al centre històric de Celrà, és un equipament cultural construït a inicis del segle XX com a sala de ball i posteriorment convertit en cinema i espai escènic. La seva façana, d’estètica modernista i protegida amb nivell C dins del Pla Especial de Protecció del Patrimoni, constitueix un element identitari del municipi . L’Ajuntament impulsa la seva rehabilitació amb la voluntat de consolidar-lo com a sala polivalent de pública concurrència i garantir-ne la continuïtat com a referent cultural .
El projecte redactat per SOM Open Energy planteja una reforma integral amb criteris d’eficiència energètica i millora acústica, conservant les façanes protegides i renovant l’estructura i la coberta per resoldre patologies existents . La intervenció incorpora una solució constructiva tipus box in box a l’interior de la sala, mitjançant un sistema autoportant desacoblat de l’envolupant existent que millora substancialment l’aïllament acústic i el confort tèrmic, alhora que permet integrar noves instal·lacions de climatització i ventilació d’alta eficiència . El resultat és un equipament cultural contemporani, energèticament eficient i acústicament optimitzat, respectuós amb el valor patrimonial de l’edifici original.






