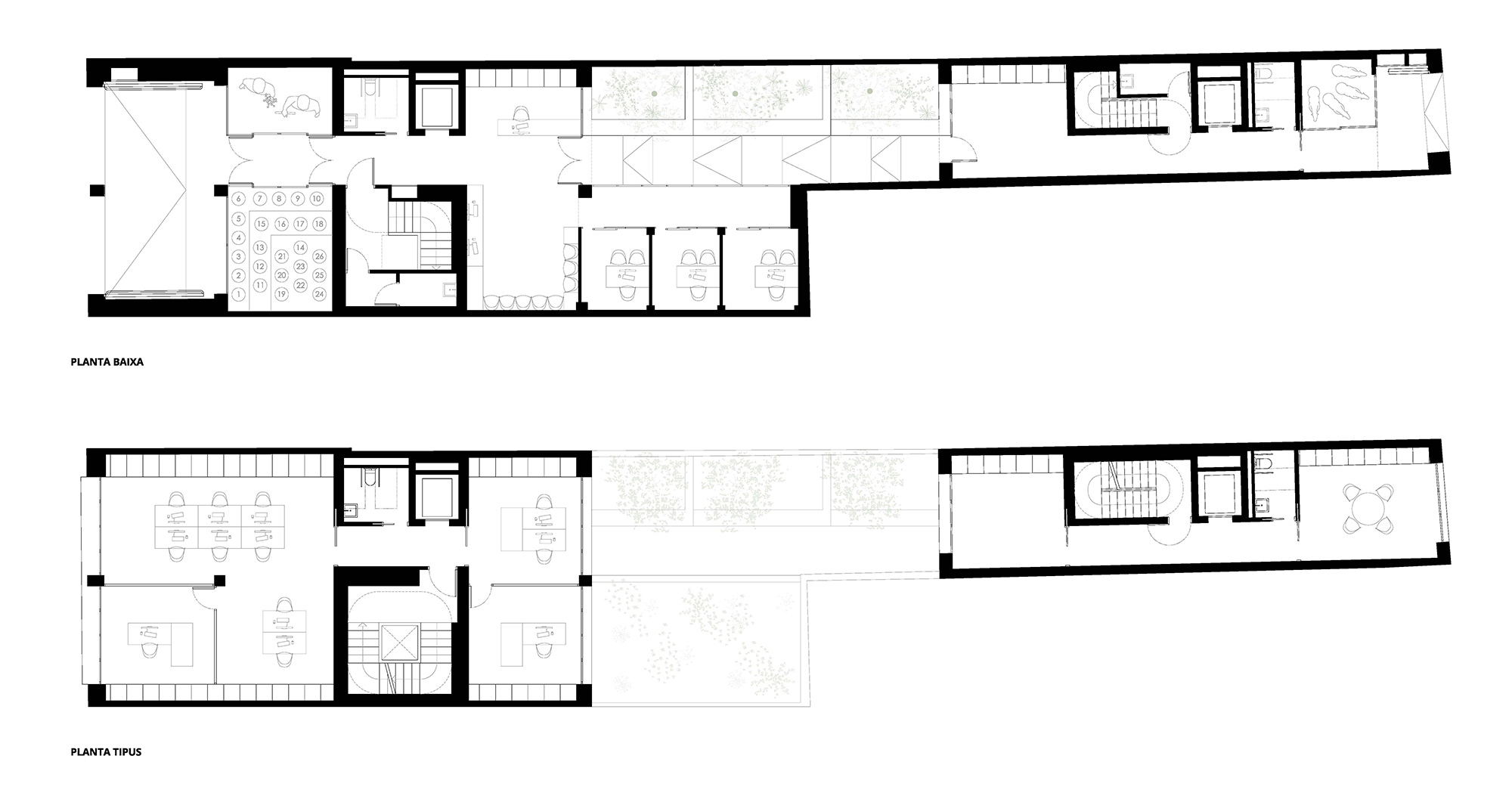
El projecte de rehabilitació de Can Tarradas s’ha desenvolupat amb un enfocament integrador, combinant la conservació patrimonial amb una estratègia d’eficiència energètica, sostenibilitat i accessibilitat universal.
L’estratègia d’intervenció es basa en la optimització de l’eficiència energètica mitjançant sistemes constructius d’altes prestacions tèrmiques i solucions passives per reduir la demanda d’energia. Millora de la seguretat estructural i funcionalitat de l’edifici. Aplicació de solucions sostenibles, incloent l’ús de materials ecològics i fonts d’energia renovable per minimitzar l’impacte ambiental. Garantir la plena accessibilitat de l’edifici, assegurant el compliment de la normativa vigent en matèria d’accessibilitat i supressió de barreres arquitectòniques.
Aquest conjunt d’actuacions converteix Can Tarradas en un edifici totalment inclusiu, accessible per a persones amb mobilitat reduïda i necessitats diverses, reforçant-ne la funcionalitat i l’ús social.



