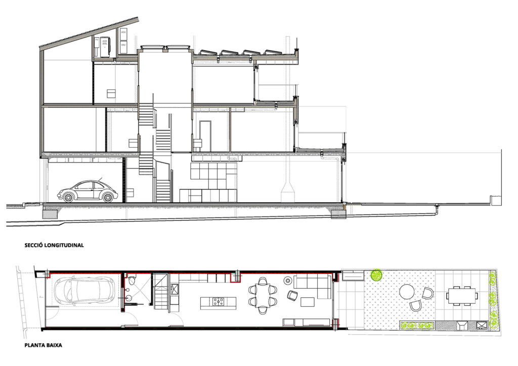
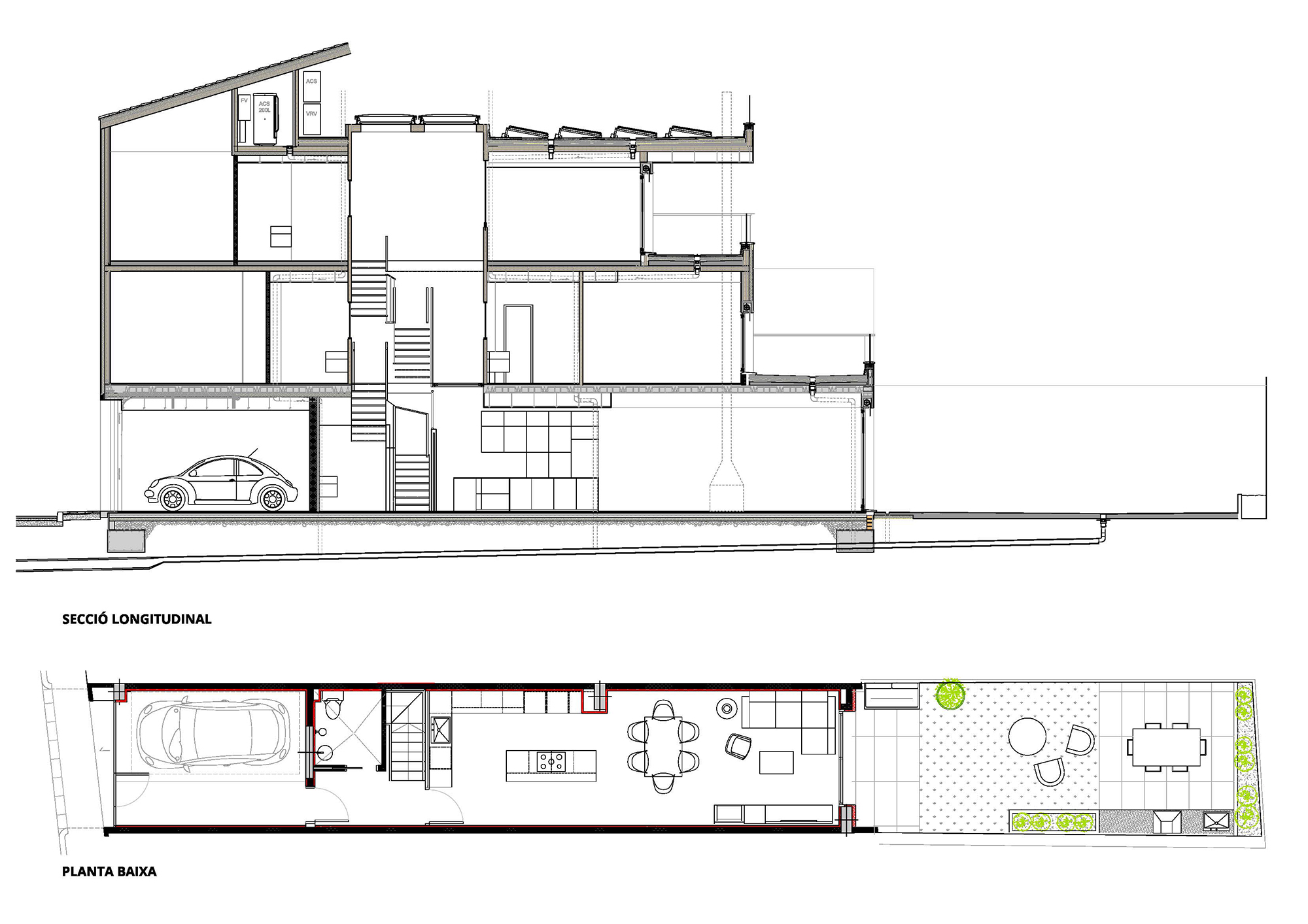
El projecte d’obra nova del habitatge unifamiliar entre mitgeres, en el carrer Cervantes de Terrassa, preveu la construcció amb estructura mixta de formigó armat en fonamentació i planta baixa, i panells de fusta contralaminada (CLT) en les plantes superiors i coberta.
L’envolupant combina façana ventilada amb sistema SATE i fusteria d’alumini amb trencament de pont tèrmic i vidres de baixa emissivitat. La coberta transitable per manteniment, integra captadors solars fotovoltaics i unitat exterior VRV. La compartimentació interior es resol amb envans de cartró-guix i panells de CLT cara vista en algunes zones, i acabats ceràmics en zones humides.
La climatització i ACS es genera mitjançant bomba de calor aerotèrmica i sistema VRF per conductes. La instal·lació elèctrica permet electrificació elevada (9,20 kW) i recàrrega de vehicles elèctrics. El sanejament separa aigües residuals i pluvials fins a l’arqueta sifònica.
La principal estrategia bioclimàtica del projecte es realitza per mitjà del lluernari interior, que aporta gran quantitat de iluminació natural al mateix temps que per mitja de les quatre claraboies de coberta ajuda al tiratge de l’aire generant corrents naturals al interior.
ventilació és híbrida, combinant microventilació natural i extracció mecànica en cambres higièniques. L’execució es regeix pel CTE i normatives d’eficiència energètica, garantint un habitatge d’alta prestació amb una contribució renovable del 86,80% en ACS.
L’habitatge unifamiliar del Carrer Cervantes, 29 de Terrassa, obté una certificació energètica Classe A, amb emissions de 3,14 kgCO₂/m² any i un consum d’energia primària no renovable de 18,30 kWh/m² any. La demanda de calefacció és de 5,55 kWh/m² any i la de refrigeració 13,12 kWh/m² any, destacant per la seva alta eficiència i baix impacte ambiental.









